Под Горно-Алтайском появится современный мотоспортивный комплекс
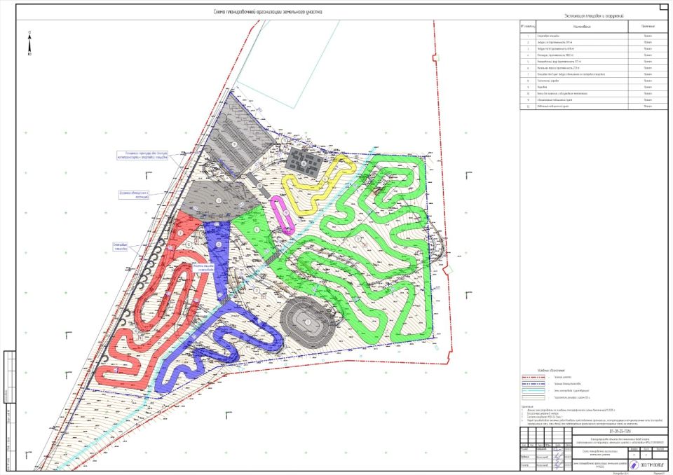
В Майминском районе началась подготовка к строительству масштабного спортивного кластера для любителей мототехники и экстремальных видов спорта. На территории площадью 10 гектаров планируется создать многофункциональный комплекс с трассами различного уровня сложности.
Проект, инициированный местной предпринимательницей Еленой Раенко, включает:
• Специализированные трассы для мотокросса и эндуро
• Сезонные маршруты для снегоходов и лыжников
• Тактический городок и учебную зону для новичков
• Хоккейную коробку и зоны для отдыха
Инфраструктура комплекса будет включать сервисную станцию, пункты проката техники, кафе и гостиницу. По словам автора проекта, главная цель — обеспечить безопасные условия для занятий мотоспортом и сократить количество любителей экстрима на дорогах общего пользования.
Реализация проекта рассчитана на три года. Старт строительных работ запланирован на весну 2026 года, техническая документация уже прошла согласование.











































